Кияни вважали, що під виглядом проєкту «Містечко добра», колишній нардеп Володимир Зубик забудує зелену зону 9 висотками.
У жовтні Верховний Суд поставив крапку у суперечці релігійної громади та киян щодо забудови соснового лісу напроти Парку Перемога. Судді визнали, що рішення Київради розірвати угоду про оренду 4,2 га ділянки та надати зеленій зоні статусу парку було законним.
Ця історія пройшла два кола судових інстанцій. Судді то приймали рішення на користь киян, то на користь релігійної організації. Нагадаємо, що у 2000 році церква «Християнська Надія» стала власницею недобудованого спорткомплексу «Динамо», який мав стати за радянських часів республіканською спеціалізованою базою підготовки футболістів.

Церква планувала створити з цієї недобудови духовно-благодійний комплекс. Для цього вона у 2004 році отримала ділянку під базою на вул. Князя Романа Мстиславича, 20 (колишня назва - вул. Генерала Жмаченко) в оренду на 25 років. За умовами договору, до 2007 року церква мала завершити реконструкцію. Проте цього не сталося.
«Перші спроби з «освоєння» ділянки почалися у 2018 році – туди зайшла техніка для геологічних досліджень, почали бурити та спробували почати зрізати дерева», - йдеться у дописі групи «Парк на Жмаченко» в соцмережі.

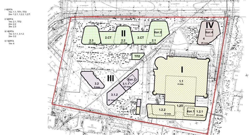
Виявилося, що окрім духовних споруд релігійна громада мала побудувати ще й ЖК. Церквою було заплановано 4 черги будівництва. Перша черга включала храм та молитовний центр, а друга черга передбачала житлові будинки. Загалом мало з’явитися 9 свічок від 10 до 27 поверхів.

Щоб розпочати будівництво, у жовтні 2018 року департамент містобудування Київради спочатку видав свої вимоги (МУО – містобудівні умови та обмеження – ред.) на будівництво. Проте коли кияни почали протестувати проти забудови, підмінив документи та під тим же номером оприлюднив наказ про «відмову у видачі».
Протести киян проти появи «Містечка добра і милосердя» в релігійній громаді назвали провокацією опонентів.
«До яких тільки незаконних дій та крайнощів вдавалися наші опоненти, щоб захопити виділену нам земельну ділянку! Було все: численні набіги тітушок, які трощили паркани з огидною лайкою та погрозами, зруйновані КАМАЗАми десятки метрів бетонного паркану, спроби підкупів та шантажу», - розповідав у 2021 році пастор євангельської церкви "Християнська Надія" Валерій Решетинський.

Появу алею героїв АТО на спірній території в церкві назвали актом цинізму. Та закликали ветеранів втрутитися. У відповідь керівник ГО «Парк на Жмаченка» Андрій Меженко відповів, що церква чомусь не хоче показати реальний проєкт забудови.
"З дозволу на будівництво зрозуміло, що церква – лише ширма й тут планують будувати величезний ЖК. Публічно пастор відповіді на питання про проєкт уникає: "говорити щось рано", "не готові презентувати", "як буде Богу угодно" та щось на кшталт цього", - заявляв у 2021 році керівник громадської організації Андрій Меженко.

Забудовник не думав здаватися та у червні 2020 року департамент містобудування видав нові вимоги для забудови, а в грудні того ж року церква отримала дозвіл на будівництво. Генеральним підрядником вказали компанію «ІНТЕРГАЛ-БУД», яку пов’язують з колишнім нардепом-регіоналом Володимиром Зубиком.
Однак Київрада зайняла сторону киян у цьому конфлікті. У вересні 2020 року депутати вирішили розірвати угоду про оренду ділянки та визнати зелену зону парком. Це заважало появі нових висоток, тому продовження цієї історії було вже у судах.
Терези Феміди схилялися то на бік церкви та судді скасовували рішення Київради, то на користь киян. Однак надаючи ділянку в оренду, депутати «прописали», що можуть в односторонньому порядку розірвати угоду за двох підстав. Якщо церква не буде платити оренду протягом пів року та якщо вона буде використовувати ділянку не за призначенням. Нагадаємо, що землю надавали «для реконструкції, експлуатації та обслуговування духовно-благодійного комплексу». Про появу ЖК ніхто не домовлявся.

В результаті, у вересні 2023 року судді Верховного Суду Іван Міщенко, Єгор Краснов та Григорій Мачульський постановили, що ділянка має статус парку і забудови там не має бути.
«Тож ані релігійна громада, ані забудовник «Інтергал-Буд» не мають більше жодного права щось там робити або виганяти відпочиваючих, як це робила охорона (читай – титушки забудовника) релігійної громади!», - відреагували на це рішення кияни.
Ця постанова є остаточною та оскарженню не підлягає.
Інформатор писав, що у Києві в орендаря відсудили землю, на якій будують житловий комплекс Академ-Квартал.
Підписуйтесь на наш Telegram-канал, щоб не пропустити важливих новин. За новинами в режимі онлайн прямо в месенджері слідкуйте на нашому Telegram-каналі Інформатор Live. Підписатися на канал у Viber можна тут.