По сравнению с первоначальным планом объем жилой застройки уменьшился на треть, будет расширена зеленая зона, а вот вопрос с высотностью домов пока во взвешенном состоянии
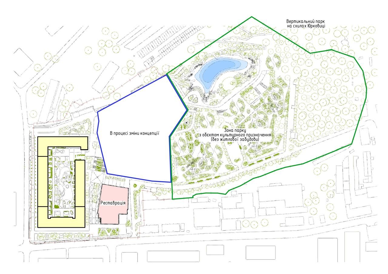
В Подольском районе Киева возобновляется реализация проекта «Рихерт&Парк» в пределах улиц Нижнеюрковской, Кирилловской и Мыльного переулка, строительство которого было приостановлено в начале полномасштабной войны. За это время застройщик переосмыслил начальную концепцию строительства на территории бывшей кирпичной фабрики, а позже – винокурни Михаила Рихтера (Рихерта) на ул. Кирилловской, 35. В результате чего совокупная площадь жилых домов уменьшится на 30%, а на новом участке будет обустроен парк площадью 5,85 га с культурно-спортивным центром.
Об этом сообщает пресс-служба компании-застройщика А Development и отмечается, что происходит завершающий этап подписания меморандума с Киевом в лице Подольской районной государственной администрации. Правда, пока не понятно, как будет решен вопрос с разрешением строить 42-метровые дома на 12 этажей, против которого год назад выступала руководитель Департамента охраны культурного наследия Киевсовета Марина Соловьева. Ведь в действующем Генеральном плане города высотность в центральной исторической части не может превышать 27 метров.
Тогда застройщик аргументировал свою позицию тем, что получил разрешения еще в 2016 году, когда действовали другие правила, согласно которым Минкульт разрешил ему строить на этом конкретном участке в диапазоне от 27 до 60 метров. В настоящее время меморандум, который должен быть подписан с городом, предусматривает, что застройщик должен «соблюдать предельные ограничения высотности проекта, согласно ранее достигнутым договоренностям с местными жителями во время общественных слушаний по реализации указанного проекта». Вероятно, под этими договоренностями подразумевается снижение высотности в проекте с 42 до 36 метров, о котором изданию The Village Украина сообщила компания А Development. По информации пресс-службы компании, в результате диалога с локальными жителями застройщик пошел навстречу их запросу и снизил высотность в проекте до 36 метров.

Среди других обязательств А Development есть инвестиции в размере 40 млн грн в реновацию школы, которую выбрала местная община, проведение реставрационных работ памятников архитектуры, по которым девелопер подписал охранные договоры, в частности, главное здание завода с башней. Кроме того, благоустройство прилегающей к участку строительства территории и устройства общедоступного вертикального парка в ареале склонов горы Юрковица с прогулочными зонами и террасами. Кстати, самую гору деволепор не будет трогать, как отметил в интервью The Village Украина основатель А Development Алексей Баранов, речь идет только о благоустройстве, очистке озера и обустройстве выхода из жилого квартала на Юрковицу.
В общем, с одной стороны, реализация этого масштабного проекта должна сохранить здания завода Рихтера, который отнесен к перечню памятников архитектуры местного значения, привести в порядок заброшенные территории в центре города и предоставить вторую жизнь бывшей промзоне. С другой стороны, вопрос с высотностью домов «завис» в воздухе, и это беспокоит местных жителей и общественность. К тому же, появление ЖК в этой местности приведет к погрузке на инфраструктуру Подола, росту автомобильного трафика, перегрузке инженерных сетей. Однако процесс уже «пошел», как отмечает застройщик, возобновление строительных работ возможно еще до подписания Меморандума — пока исключительно в пределах очередей, где предельная высота домов не превышает отметку 27 метров.
Напомним, в конце июля Информатор писал о том, что попытка защиты общиной Киева еще одного исторического здания конца XIX в. потерпела поражение. Вечером 19 июля строители снесли усадьбу Зеленских 1890 постройки в центре столицы. Это известное здание, о нем не раз писал Информатор и другие СМИ, памятники не раз митинговали с требованием предоставить ему охранный статус, создавали петиции, а учитывая название, обращались за защитой даже к президенту. Ни одно из этих мероприятий не было результативным: усадьбы на ул. Конисского, 22 не стало.
Также мы говорили, что в первой декаде июня на рынке недвижимости Киева произошел тревожный прецедент. Столичный Хозяйственный суд принял решение, которым вернул два земельных участка в собственность киевской общины. Их, как доказала прокуратура столицы, незаконно передали под застройку – а на этой земле уже построили коробки одного из ЖК. По решению суда здания должны снести. Кто и как будет демонтировать сооружения, а также делать инвесторам, которые вложились в строительство, узнал Информатор.
Подписывайтесь на наш Telegram-канал, чтобы не пропустить важные новости. Подписаться на канал в Viber можно здесь.